



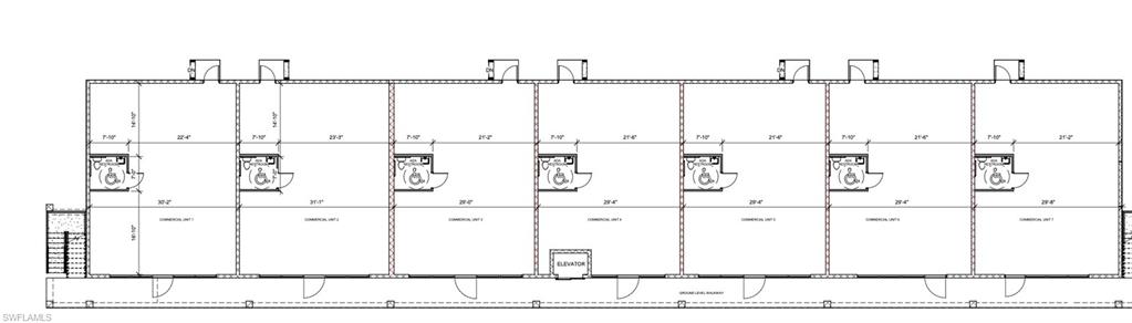
Entitled land with approved building and MEP plans for a mixed-use development featuring workforce housing and commercial space. This property is zoned C1 (confirm zoning for uses) and presents a prime opportunity for developers and investors. The project includes 70 workforce housing units designed to meet the increasing demand for affordable housing, offering well-planned and comfortable living spaces. In addition, 8,300 square feet of versatile commercial space is available for retail, office, or mixed-use purposes, providing ample flexibility for various businesses. Located in the thriving South Cape Coral area, this property offers excellent access to public transportation, major highways, and local amenities, making it an attractive location for residents and commercial tenants. The nearby schools, parks, restaurants, and healthcare facilities further enhance the appeal, ensuring a high quality of life for future residents. With strong demand for workforce housing, this development offers a stable rental market, complemented by the potential for long-term commercial leases. The property’s design supports community impact, fostering a vibrant and integrated environment. As the area grows and develops, there is significant appreciation potential, making this a compelling investment opportunity. The property is deed-restricted under the Live Local Bill, requiring 40% of units to be rented to tenants earning less than 120% of the area median income (AMI). As of April 2024, Cape Coral's AMI is $88,800. Seller financing is available. Buyers may select either of two paths: Acquire the lot an build under their own contractor and financing or partner with Coast Life Developers through a build-for-buyer agreement, with the option for long-term property management. Long-term property management is available upon delivery.
| 2 weeks ago | Listing updated with changes from the MLS® | |
| 4 weeks ago | Price changed to $2,100,000 | |
| a year ago | Status changed to Active | |
| a year ago | Listing first seen on site |
Did you know? You can invite friends and family to your search. They can join your search, rate and discuss listings with you.