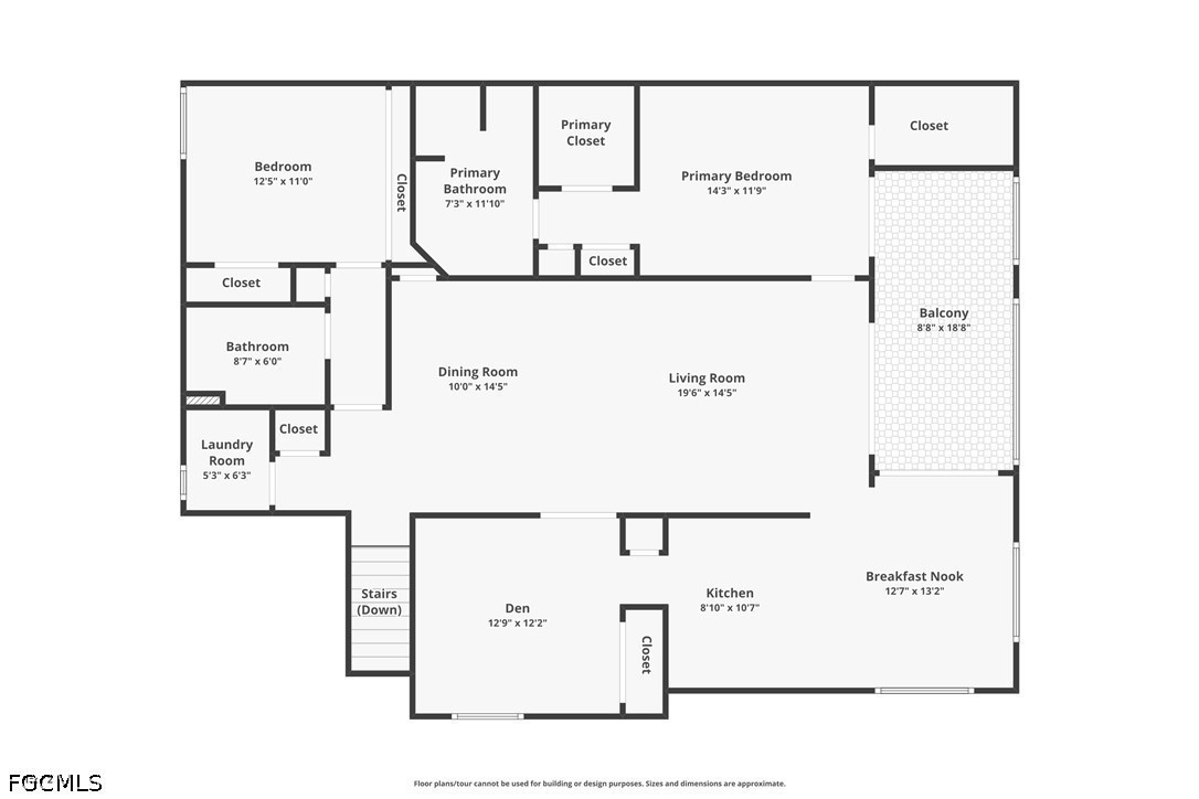
Parker Lakes – Glen Cove 2nd floor end unit. NO CITY TAXES & NO HIDDEN CDD TAXES. Fully turnkey 2BR + den (den can be used as 3rd bedroom). Wide lake view from main living areas and tiled lanai with acrylic shutters.
The End unit provides additional windows and natural light. Features include imported wool carpet, plantation shutters throughout, and updated fixtures and fans. Both bathrooms have been updated with newer tiled showers, updated cabinetry, and upgraded countertops. The primary bath offers a spacious, modernized layout, and the guest bath has been similarly improved.
Recent updates include 2024 roof and 2025 exterior paint.
Located in Glen Cove within Parker Lakes. Enjoy the Parker Lakes lifestyle with resort-style amenities including a lagoon pool, lap pool, wading pool, hot tub (open until 11 PM), tennis and pickleball courts, basketball and racquetball, fitness center, clubhouse, shuffleboard, and a fishing pier teeming with fish. Prime Fort Myers location with five grocery stores within five minutes, plus easy access to beaches, dining, and shopping.
Save
Ask
Tour
Hide
Share
Listing Snapshot
Price
$339,000
Days On Site
28 Days
Bedrooms
3
Inside Area (SqFt)
1,784 sqft
Total Baths
2
Full Baths
2
Partial Baths
N/A
Lot Size
0.1358 Acres
Year Built
1999
MLS® Number
2026015272
Status
Active
Property Tax
$3,777.74
HOA/Condo/Coop Fees
$660 monthly
Sq Ft Source
Appraiser
Friends & Family
React
Comment
Invite
No Comments Yet
Did you know? You can invite friends and family to your search. They can join your search, rate and discuss listings with you.
The data relating to real estate for sale on this website comes in part from the Florida Gulf Coast MLS. The information being provided is for consumers' personal, non-commercial use and may not be used for any purpose other than to identify prospective properties consumers may be interested in purchasing. Information deemed reliable but not guaranteed.
Neighborhood & Commute
Source: Walkscore
Disclosure: Community information and market data powered by Constellation Data Labs. Information is deemed reliable but not guaranteed.
Did you know? You can invite friends and family to your search. They can join your search, rate and discuss listings with you.